Warning: foreach() argument must be of type array|object, null given in /home/groupecron/www/wp-content/themes/groupecrespy/diaporama.php on line 6
Warning: foreach() argument must be of type array|object, null given in /home/groupecron/www/wp-content/themes/groupecrespy/diaporama.php on line 25
Approchez le curseur du bord de l'écran pour voir plus de photos
? / ?
X
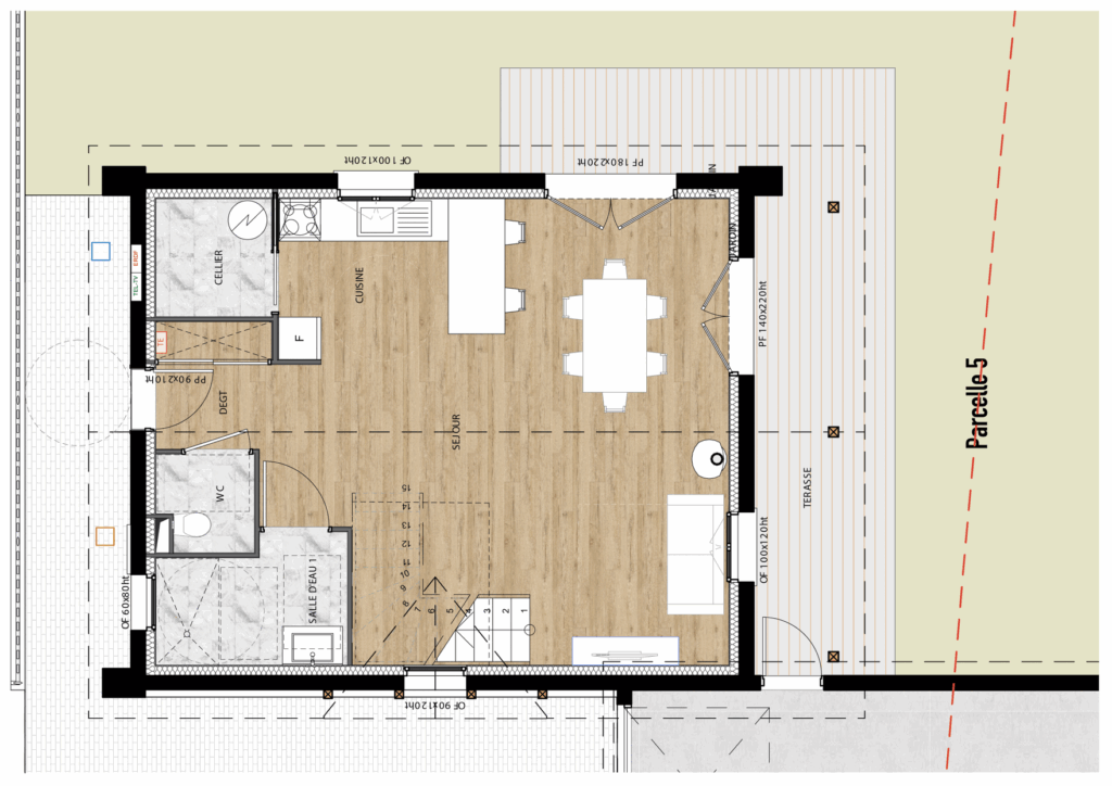
Chalet individuel 1
Surface T4
Séjour
23.10 m²
Cuisine
6.20 m²
Cellier
4.40 m²
Salle d'eau 1
5.50 m²
Sanitaire
2.70 m²
Dégagement
6.90 m²
Rangement
1.40 m²
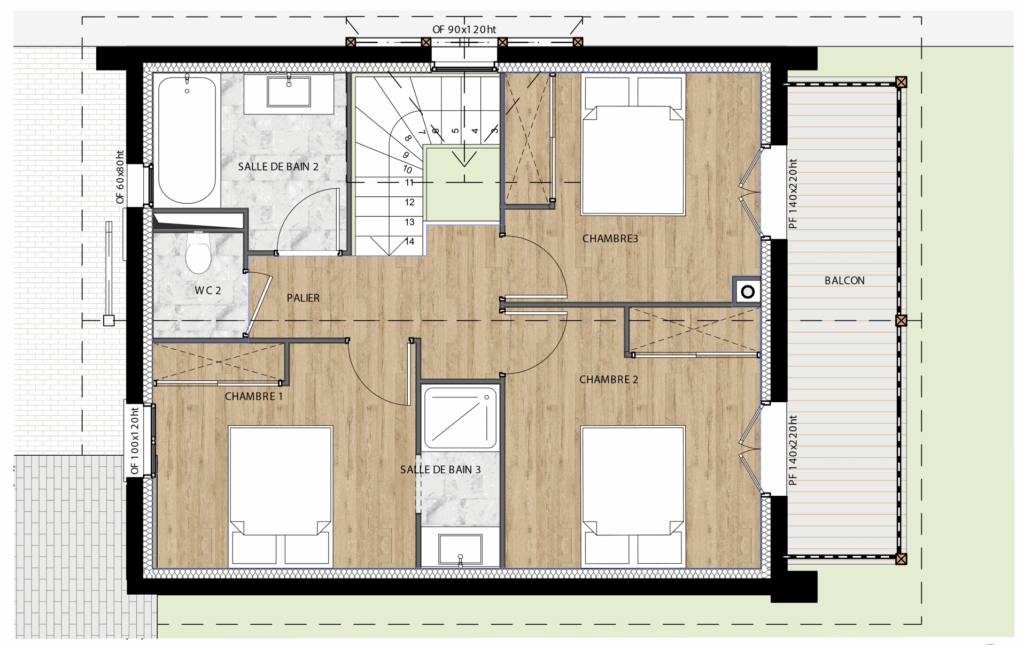
Palier
5.70 m²
Salle d'eau 2
6.10 m²
Salle d'eau 3
3.50 m²
Chambre 1
11.80 m²
Chambre 2
10.80 m²
Chambre 3
10.90 m²
Total SH
99 m²
Allée entrée
64.90 m²
Jardin
66.30 m²
Terrasse et balcon
15.00 m²
Garage
31.30 m²
Parcelle n°1
245 m²
Exemple d'agencement du T4
Plan Rez-de-chaussée
Plan Étage 1
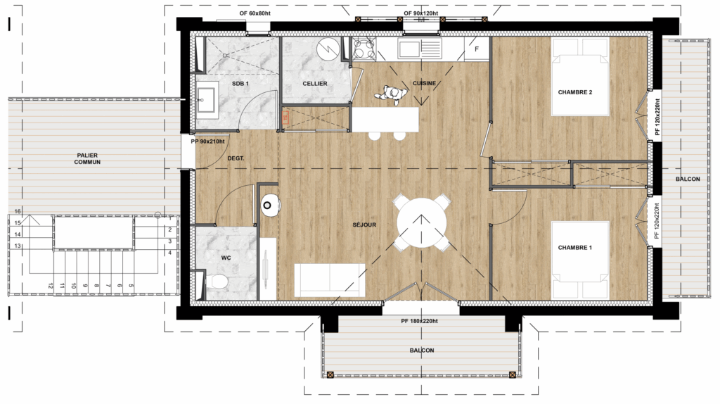
Chalet individuel 2
Surface T4
Séjour
27.40 m²
Cuisine
7.05 m²
Cellier
2.65 m²
Salle d'eau 1
4.20 m²
Sanitaire
2.05 m²
Dégagement
6.05 m²
Rangement
1.35 m²
Palier
4.90 m²
Salle d'eau 2
3.10 m²
Salle d'eau 3
5.70 m²
Chambre 1
11.35 m²
Chambre 2
10.90 m²
Chambre 3
12.50 m²
Total SH
99.2 m²
Allée entrée
125.20 m²
Jardin
215 m²
Balcon
4.70 m²
Garage
32.60 m²
Parcelle n°2
465 m²
Exemple d'agencement du T4
Plan Rez-de-chaussée
Plan Étage 1
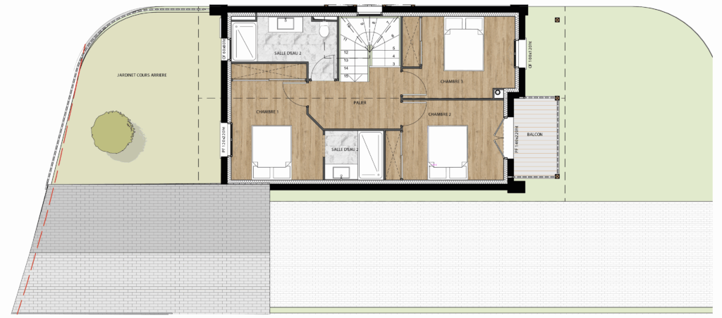
Chalet individuel 3
Surface T4
Séjour
30.30 m²
Cuisine
7.30 m²
Cellier
2.70 m²
Salle d'eau 1
4.20 m²
Sanitaire
1.80 m²
Dégagement
2.90 m²
Palier
4.70 m²
Salle d'eau 2
5.40 m²
Salle d'eau 3
2.60 m²
Chambre 1
10.50 m²
Chambre 2
11.80 m²
Chambre 3
10.30 m²
Sanitaire
1.70 m²
Total SH
96.2 m²
Allée entrée
30.30 m²
Jardin
113 m²
Balcon
9.10 m²
Garage
37.00 m²
Parcelle n°3
270 m²
Exemple d'agencement du T4
Plan Rez-de-chaussée
Plan Étage 1
Chalet individuel 4
Surface T4
Séjour
30.30 m²
Cuisine
6.70 m²
Cellier
3.60 m²
Salle d'eau 1
3.80 m²
Sanitaire
2.00 m²
Dégagement
5.00 m²
Palier
4.90 m²
Salle d'eau 2
5.70 m²
Salle d'eau 3
2.50 m²
Chambre 1
12.40 m²
Chambre 2
11.20 m²
Chambre 3
11.11 m²
Sanitaire
1.70 m²
Total SH
100.91 m²
Allée entrée
40 m²
Jardin
122 m²
Balcon
9.10 m²
Garage
37.00 m²
Parcelle n°4
275 m²
Exemple d'agencement du T4
Plan Rez-de-chaussée
Plan Étage 1
Chalet individuel 5
Surface T4
Séjour
30.70 m²
Cuisine
7.30 m²
Cellier
2.70 m²
Salle d'eau 1
4.60 m²
Sanitaire 1
1.80 m²
Dégagement
2.70 m²
Palier
5.00 m²
Salle d'eau 2
5.70 m²
Salle d'eau 3
2.50 m²
Chambre 1
11.10 m²
Chambre 2
11.20 m²
Chambre 3
9.60 m²
Sanitaire 2
1.70 m²
Total SH
96.6 m²
Allée entrée
55 m²
Jardin
125 m²
Balcon + Terrasse
15.90 m²
Garage
30.70 m²
Parcelle n°5
304 m²
Exemple d'agencement du T4
Plan Rez-de-chaussée
Plan Étage 1
Chalet individuel 6
Surface T4
Séjour
29.50 m²
Cuisine
6.50 m²
Cellier
3.60 m²
Salle d'eau 1
3.80 m²
Sanitaire
1.70 m²
Dégagement
4.20 m²
Palier
4.90 m²
Salle d'eau 2
5.70 m²
Salle d'eau 3
2.50 m²
Chambre 1
11.10 m²
Chambre 2
11.10 m²
Chambre 3
10.80 m²
Sanitaire
2.00 m²
Total SH
97.4 m²
Allée entrée
170 m²
Jardin
209 m²
Balcon + Terrasse
16.20 m²
Garage
30.80 m²
Parcelle n°6
495 m²
Exemple d'agencement du T4
Plan Rez-de-chaussée
Plan Étage 1
Chalet partagé 7
Surface T3
Séjour
23.30 m²
Cuisine
5.70 m²
Cellier
2.50 m²
Salle d'eau 1
4.20 m²
Sanitaire
2.40 m²
Dégagement
3.70 m²
Rangement
0.90 m²
Chambre 1
12.60 m²
Chambre 2
10.40 m²
Total SH
65.7 m²
Jardin
52.60 m²
Parcelle n°7
140 m²
Exemple d'agencement du T3
Plan Rez-de-chaussée
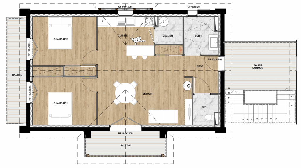
Chalet partagé 8
Surface T3
Séjour
23.30 m²
Cuisine
5.70 m²
Cellier
2.40 m²
Salle d'eau
4.20 m²
Sanitaire
2.40 m²
Dégagement
3.80 m²
Rangement
0.90 m²
Chambre 1
12.60 m²
Chambre 2
10.40 m²
Total SH
65.7 m²
Balcon
13.70 m²
Parcelle n°7
140 m²
Exemple d'agencement du T3
Plan Étage 1
Chalet partagé 9
Surface T3
Séjour
23.30 m²
Cuisine
5.70 m²
Cellier
2.50 m²
Salle d'eau 1
4.20 m²
Sanitaire
2.40 m²
Dégagement
3.80 m²
Chambre 1
10.40 m²
Chambre 2
12.60 m²
Total SH
64.9 m²
Jardin
85.30 m²
Terrasse
6.40 m²
Parcelle n°8
180 m²
Exemple d'agencement du T3
Plan Rez-de-chaussée
Chalet partagé 10
Surface T3
Séjour
23.50 m²
Cuisine
7.50 m²
Cellier
2.40 m²
Salle d'eau
4.20 m²
Sanitaire
2.30 m²
Dégagement
3.80 m²
Rangement
0.90 m²
Chambre 1
11.40 m²
Chambre 2
11.70 m²
Total SH
67.7 m²
Balcon
13.20 m²
Parcelle n°8
180 m²
Exemple d'agencement du T3
Plan Étage 1
Chalet partagé 11
Surface T3
Séjour
23.50 m²
Cuisine
5.50 m²
Cellier
2.50 m²
Salle d'eau
4.20 m²
Sanitaire
2.30 m²
Dégagement
3.80 m²
Rangement
0.90 m²
Chambre 1
10.40 m²
Chambre 2
12.60 m²
Total SH
65.7 m²
Jardin
98.60 m²
Parcelle n°9
187 m²
Exemple d'agencement du T3
Plan Rez-de-chaussée
Chalet partagé 12
Surface T3
Séjour
23.60 m²
Cuisine
5.50 m²
Cellier
2.40 m²
Salle d'eau
4.20 m²
Sanitaire
2.40 m²
Dégagement
3.80 m²
Rangement
0.90 m²
Chambre 1
11.00 m²
Chambre 2
12.00 m²
Total SH
65.8 m²
Balcon
12.90 m²
Parcelle n°9
187 m²
Exemple d'agencement du T3
Plan Étage 1
À Vignec, Saint-Lary Soulan
Projet immobilier
Groupe Crespy
Vignec, un des plus anciens villages de la vallée d’Aure,
à l’orée de Saint-Lary Soulan
Dans le plus grand respect des
constructions Pyrénéennes
Ce programme réalisé par le groupe Crespy et ses filiales de construction, s’inscrit dans un cadre naturel et préservé, et dans le plus grand respect des constructions Pyrénéennes et des labels et normes en vigueur.
6 chalets individuels - 6 chalets partagés
Chalets individuels
1 - 6
Chalet individuel 1
Plus de détails
Parcelle n°1
245 m²
Chalet individuel 2
Plus de détails
Parcelle n°2
465 m²
Chalet individuel 3
Plus de détails
Parcelle n°3
270 m²
Chalet individuel 4
Plus de détails
Parcelle n°4
275 m²
Chalet individuel 5
Plus de détails
Parcelle n°5
304 m²
Chalet individuel 6
Plus de détails
Parcelle n°6
495 m²
Chalets partagés
7 - 12
Chalet partagé 7
Plus de détails
Parcelle n°7
140 m²
Chalet partagé 8
Plus de détails
Parcelle n°7
140 m²
Chalet partagé 9
Plus de détails
Parcelle n°8
180 m²
Chalet partagé 10
Plus de détails
Parcelle n°8
180 m²
Chalet partagé 11
Plus de détails
Parcelle n°9
187 m²
Chalet partagé 12
Plus de détails
Parcelle n°9
187 m²
Domaine skiable
Au pied de la route d’accés au domaine skiable
Pla d’Adet 1 683m
Saint-Lary 2400m ou Vallon du Portet
Espiaube 1900m ou Vallon du Portet
Accès domaine
633 mètres des télécabines
600 mètres du Parc Thermal et Spa Sensoria Rio
Tous commerces à proximité à Vignec ou Saint-Lary
Nature
Bien-vivre
Ski
Randonnée
Découverte
Culture
Pont d'Espagne
Village
Accès village
20 Km du tunnel transfrontalier d’Aragnouet Bielsa
37 Km gare de la gare SNCF
43 Km de l’A64
Un projet réalisé avec des
collaborateurs de confiance
Projet réalisé en collaboration avec Square habitat et le crédit agricole.
Ci-après les coordonnées pour plus d’information sur les annonces et projections fournies.